Richiedi Informazioni
Hai domande su come partecipare
alle aste telematiche giudiziarie?
Pubblicato il 17/01/2017 10:11:45
Delegato alla vendita: ANNA RUFFINO
Prezzo dell'avviso: € 4.827,38
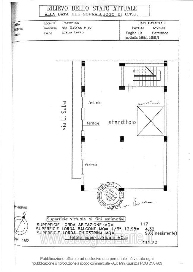
Superficie Riferimento: 112
Vendita con prelazione: Non Specificato
Trattativa Riservata: No
Data ultimo aggiornamento: 21/04/2017 11:34:35
Esito: ASSEGNATO
Data esito: 21/04/2017 11:34:15

Tribunale:Palermo
Tipologia di procedura:Esecuzioni Individuali
Numero Procedura:238
Anno Procedura:1997
Numero Lotto:Lotto 4
Rito:Esecuzioni Immobiliari post legge 80
Giudice: Rossana Guzzo
Delegato alla Vendita: ANNA RUFFINO
CF: RFFNNA54P60G273H
Telefono: 091/302383
Descrizione:Chiunque è ammesso a presentare offerte eccetto il debitore. Non è ammessa la formulazione dell’offerta a mezzo di procuratore speciale. Ciascun partecipante dovrà presentare dichiarazione di offerta in carta legale, personalmente o a mezzo di procuratore legale (in tal caso dovrà essere allegata la procura speciale che ne giustifichi i poteri) anche a norma dell’art. 579, ultimo comma c.p.c. L'indicazione del prezzo offerto, non potrà essere inferiore oltre un quarto al prezzo minimo indicato nell’avviso di vendita (e quindi, tenuto conto del prezzo minimo sopra indicato, non potrà essere inferiore ad Euro 3.620,53)
Notaio Banditore:ANNA RUFFINO
Metodo Asta:Asta Tradizionale
Luogo svolgimento Asta: Piazza G. Amendola n.31, piano secondo, scala A
Data e Ora svolgimento Asta: 21/04/2017 10:30:00
Data e Ora inizio presentazione offerte: 18/01/2017 09:00:00
Data e Ora fine presentazione offerte: 20/04/2017 12:00:00
Luogo dove presentare l'offerta:AS.P.E.P. Notai
Stato asta: Asta in corso
Cauzione:€ NaN
Modalità deposito cauzione:assegni circolari bancari non trasferibili intestati al Tribunale di Palermo – Sez. Es. Imm. Proc. n. 238/1997 lotto 4
Rialzo minimo prezzo base asta senza incanto:€ 1.000,00
Tipologia Asta:Unica
Modalità Asta:Senza Incanto
| Tipo immobile urbano: | Cantina o Magazzino |
| Metri quadri: | 112 |
| Categoria catastale: | C2 |
| Stato immobile: | Non specificato |
| Diritto: | Proprietà |
| Quota diritto: | 100/100 |
| Classe energetica: | Non prevista |
| Interesse storico o artistico: | Non disponibile |
| Identificativo catastale: | Definitivo |
| Foglio: | 12 |
| Particella 1: | 1585 |
| Subalterno 1: | 9 |
| Verifica conformità catastale: | Non disponibile |
| Pertinenza autorimessa: | No |
| Pertinenza cantina: | No |
| Pertinenza terrazzo: | No |
| Classato: | No |
| Stato immobile: | Non specificato |
Richiedi Informazioni
Hai domande su come partecipare
alle aste telematiche giudiziarie?
Ufficio Aste e Avvisi Gestore Notartel S.p.A. Società informatica del NotariatoSocietà Benefit Via G.V. Gravina, 4 - 00196 Roma E-mail: gestorenotartel@notariato.it PEC: gestorevendite@postacertificata.notariato.it Tel. 06 36769500 (call center)