Richiedi Informazioni
Hai domande su come partecipare
alle aste telematiche giudiziarie?
Pubblicato il 22/06/2017 08:51:00
Delegato alla vendita: TOMMASO PORCELLI
Prezzo dell'avviso: € 23.625,00
Superficie Riferimento: 350
Vendita con prelazione: Non Specificato
Trattativa Riservata: No
Data ultimo aggiornamento: 21/11/2018 16:44:58
Esito: ESITO N.D.

Tribunale:Palermo
Tipologia di procedura:Esecuzioni Individuali
Numero Procedura:1154
Anno Procedura:1994
Numero Lotto:Lotto Unico
Rito:Esecuzioni Immobiliari post legge 80
Cronologico ordinanza:42/2006
Data ordinanza:10/02/2006
Giudice: Rossana Guzzo
Delegato alla Vendita: TOMMASO PORCELLI
CF: PRCTMS50R24E974X
Telefono: 091328783
Descrizione:Chiunque è ammesso a presentare offerte eccetto il debitore. Non è ammessa la formulazione dell’offerta a mezzo di procuratore speciale. Ciascun partecipante dovrà presentare dichiarazione di offerta in carta legale, personalmente o a mezzo di procuratore legale (in tal caso dovrà essere allegata la procura speciale che ne giustifichi i poteri) anche a norma dell’art. 579, ultimo comma c.p.c. L'indicazione del prezzo offerto, non potrà essere inferiore oltre un quarto al prezzo minimo indicato nell’avviso di vendita (e quindi, tenuto conto del prezzo minimo sopra indicato, non potrà essere inferiore ad Euro 17.720,00)
Notaio Banditore:TOMMASO PORCELLI
Metodo Asta:Asta Tradizionale
Luogo svolgimento Asta: Piazza G. Amendola n.31, piano secondo, scala A
Data e Ora svolgimento Asta: 19/09/2017 09:40:00
Data e Ora inizio presentazione offerte: 23/06/2017 09:00:00
Data e Ora fine presentazione offerte: 18/09/2017 12:00:00
Luogo dove presentare l'offerta:AS.P.E.P. Notai
Stato asta: Asta in corso
Cauzione:€ NaN
Modalità deposito cauzione:assegni circolari bancari non trasferibili intestati al Tribunale di Palermo – Sez. Es. Imm. Proc. n. 1154/1994 lotto unico
Rialzo minimo prezzo base asta senza incanto:€ 1.000,00
Tipologia Asta:Unica
Modalità Asta:Senza Incanto
Dati di eventuali turni di asta o pubblicazioni precedenti per i medesimi beniDati di eventuali turni di asta o pubblicazioni precedenti per i medesimi beni
Avviso precedente: ID 20755
Data svolgimento asta: 28/03/2017 09:50:00
Prezzo dell'avviso: € 31.500,00
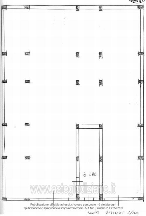
| Tipo immobile urbano: | Cantina o Magazzino |
| Metri quadri: | 350 |
| Categoria catastale: | A2 |
| Stato immobile: | Non specificato |
| Diritto: | Proprietà |
| Quota diritto: | 100/100 |
| Classe energetica: | Non prevista |
| Interesse storico o artistico: | Non disponibile |
| Identificativo catastale: | Non Specificato |
| Verifica conformità catastale: | Non disponibile |
| Pertinenza autorimessa: | No |
| Pertinenza cantina: | No |
| Pertinenza terrazzo: | No |
| Classato: | No |
| Stato immobile: | Non specificato |
Richiedi Informazioni
Hai domande su come partecipare
alle aste telematiche giudiziarie?
Ufficio Aste e Avvisi Gestore Notartel S.p.A. Società informatica del NotariatoSocietà Benefit Via G.V. Gravina, 4 - 00196 Roma E-mail: gestorenotartel@notariato.it PEC: gestorevendite@postacertificata.notariato.it Tel. 06 36769500 (call center)