Richiedi Informazioni
Hai domande su come partecipare
alle aste telematiche giudiziarie?
Pubblicato il 04/11/2021 16:24:39
Delegato alla vendita: MICHAELA MARCARINI
Prezzo dell'avviso: € 27.000,00
Vendita con prelazione: No
Trattativa Riservata: No
Data ultimo aggiornamento: 16/12/2021 15:00:00
Esito: ESITO N.D.

Tribunale:Milano
Tipologia di procedura:Esecuzioni Individuali
Numero Procedura:3182
Anno Procedura:2009
Numero Lotto:lotto unico
Rito:Esecuzioni Immobiliari post legge 80
Cronologico ordinanza:ESECUZIONE IMMOBILIARE POST LEGGE 80
Data ordinanza:22/09/2021
Giudice: Marianna Galioto
Delegato alla Vendita: Michaela Marcarini
CF: MRCMHL59T59Z114V
Descrizione:Asta n. 3182/2009 Inserzione pvp 1443818 Asta Tradizionale a link PVP https://pvp.giustizia.it/pvp/it/dettaglio_annuncio.page?anno=2009&lng=&searchresults=true&indirizzo=&contentId=LTT5871749&ricerca_libera=&idInserzione=&tipo_bene=immobili&geo=raggio&prezzo_da=&procedura=3182&raggio=25&prezzo_a=&lat=&tribunale=0151460094
Notaio Banditore:MICHAELA MARCARINI
Metodo Asta:Asta Tradizionale
Luogo svolgimento Asta: Via Corridoni n.11 - 20122 Milano (MI) Italia
Data e Ora svolgimento Asta: 16/12/2021 15:00:00
Data e Ora inizio presentazione offerte: 15/12/2021 09:30:00
Data e Ora fine presentazione offerte: 15/12/2021 13:00:00
Luogo dove presentare l'offerta:Via Corridoni n.11 - 20122 Milano (MI) Italia
Stato asta: Asta in corso
Cauzione:€ 0,00
Modalità deposito cauzione:Il bonifico per il versamento della cauzione è un assegno circolare NON TRASFERIBILE intestato alla "Proc. Esecutiva n. 3182/2009 R.G.E.", per un importo pari al IO per cento del prezzo offerto, a titolo di cauzione, che sarà trattenuta in caso di rifiuto dell'acquisto da parte dell'offerente;
Tipologia Asta:Unica
Modalità Asta:Senza Incanto
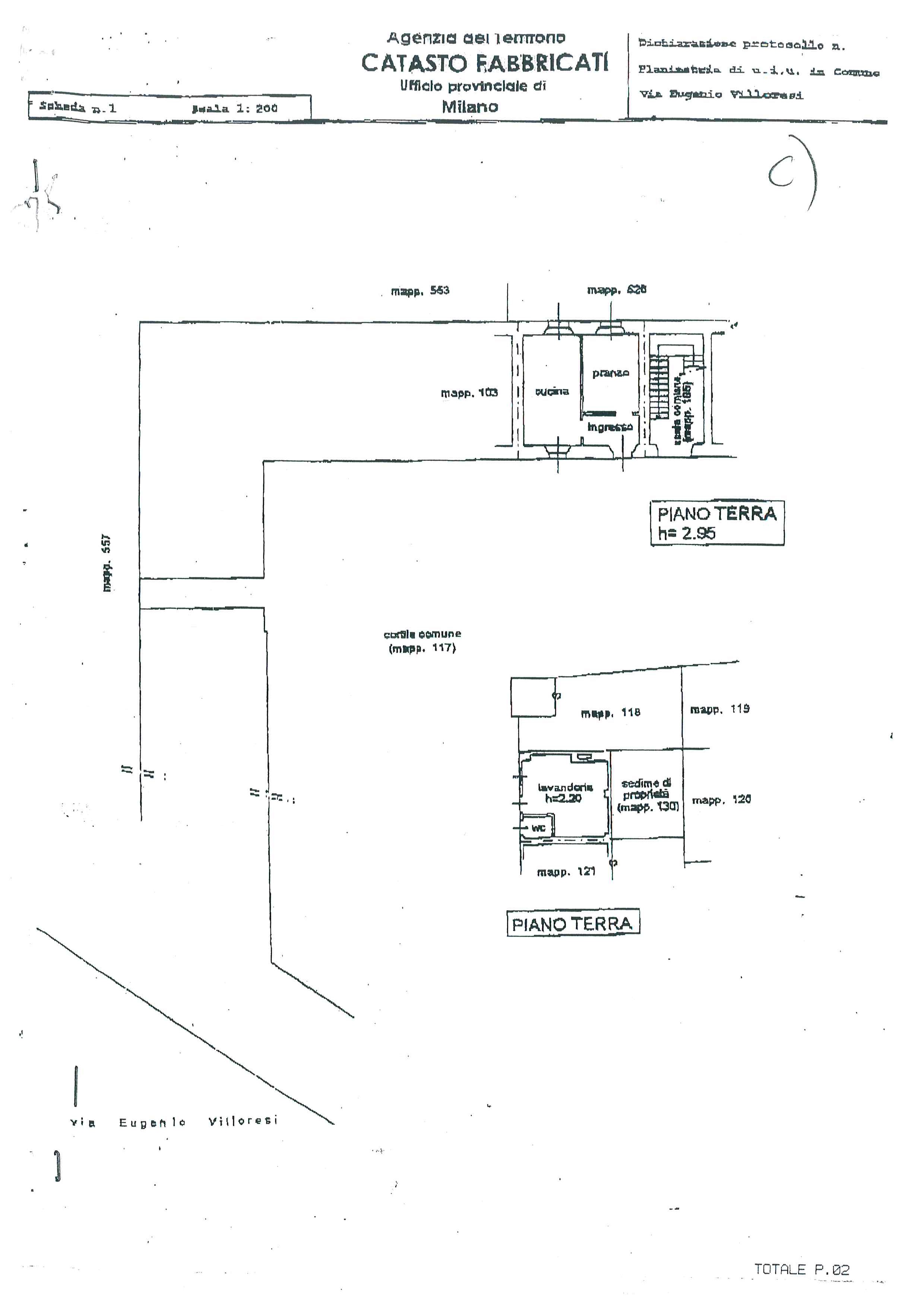
| Tipo immobile urbano: | Appartamento |
| Categoria catastale: | A4 |
| Stato immobile: | Libero |
| Diritto: | Proprietà |
| Quota diritto: | 1/1 |
| Classe energetica: | G |
| Interesse storico o artistico: | No |
| Identificativo catastale: | Definitivo |
| Foglio: | 8 |
| Particella 1: | 104 |
| Graffato: | 130 |
| Verifica conformità catastale: | Da Verificare |
| kWh/mq: | 338 |
| Pertinenza autorimessa: | No |
| Pertinenza cantina: | No |
| Pertinenza terrazzo: | No |
| Classato: | Si |
| Stato immobile: | Libero |
Richiedi Informazioni
Hai domande su come partecipare
alle aste telematiche giudiziarie?
Ufficio Aste e Avvisi Gestore Notartel S.p.A. Società informatica del NotariatoSocietà Benefit Via G.V. Gravina, 4 - 00196 Roma E-mail: gestorenotartel@notariato.it PEC: gestorevendite@postacertificata.notariato.it Tel. 06 36769500 (call center)